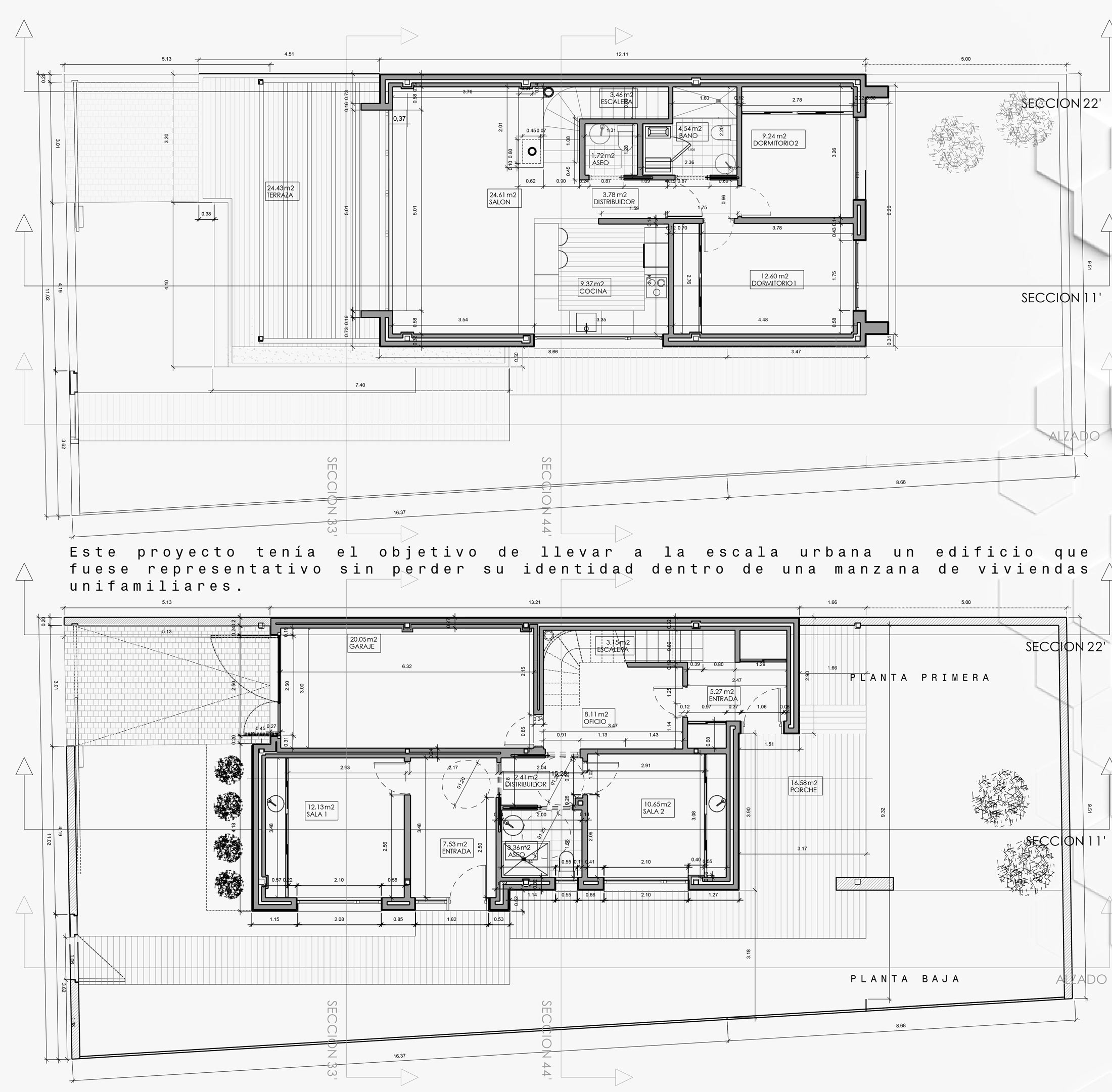
Este proyecto de arquitectura tenía el objetivo de llevar a la escala urbana un edificio que fuese representativo sin perder su identidad dentro de una manzana de viviendas unifamiliares .
Nuestro encargo fue lograr compatibilizar habitar y trabajar, espacio público y espacio privado, ver y n o ser visto, diseño
cálido y respeto por el entorno. Los materiales nos ayudan a manejar el espacio y los volúmenes. La propiedad nos trasmitió
cuales eran los objetivos de su negocio. El ambiente en el que se realizan los tratamientos debía transmitir sensaciones,
bajar el ritmo y todo ello se consigue desde el acceso a la parcela. La madera, las plantas pensadas como elementos escultóricos en un jardín urbano .

